Sale! Gourmet Deep Single Bowl Sink DLR172210 View larger

Gourmet Deep Single Bowl Sink DLR172210

New product

Stainless Steel: Gourmet Deep Single Bowl Sink DLR172210

view technical specifications

ElkayElkayTriple Bowl

Explore Elkay products

More details

More info

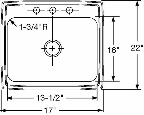
Deep Single Bowl Sink (17" x 22")
Highest quality sink bowl seamlessly formed of N18 gauge, type 304 (18-8) nickel bearing stainless steel.


Finish: Exposed surfaces are hand blended to a lustrous highlighted satin finish

Underside: Fully undercoated to dampen sound and prevent condensation
Self-rimming
Minimum Cabinet Size: 21"
Sink Dimensions: L: 17" W: 22"
Primary Bowl Depth: 10"
Bowl Dim.: 13 1/2' x 16' x 10'

Coved Corners: 1-3/4" vertical and horizontal radius

Bowl and Faucet Deck Recess: 3/16" below outside edge of sink
Drain Opening: 3-1/2"
Code Compliance: CSA, IAPMO

view technical specifications